2020 Sager Dr
Austin, TX 78741


  • $2,250
  • 2 Bedrooms
  • 2.5 Bathrooms
  • 1,451 Sq/ft
  • 1 Parking Spots
  • Built in 2018
  • MLS: 1305944

Details

Rare detached modern condo in Edgewick featuring a true split-floor plan with a first-floor bedroom and interior garage access. This unique three-level design in a gated community just 1.8 miles from Downtown Austin offers balconies on every floor and gorgeous downtown skyline views. Home includes numerous builder upgrades and thoughtful owner-selected enhancements for an elevated finish throughout, including high-end hardwoods (no carpet). Refrigerator, washer, and dryer included. This 2BD/2.5BA layout provides thoughtful separation between living and private spaces — ideal for working from home or hosting guests — all within one of Austin’s most desirable gated communities, offering a convenient lock-and-leave lifestyle just steps from Mabel Davis Park and trail access.

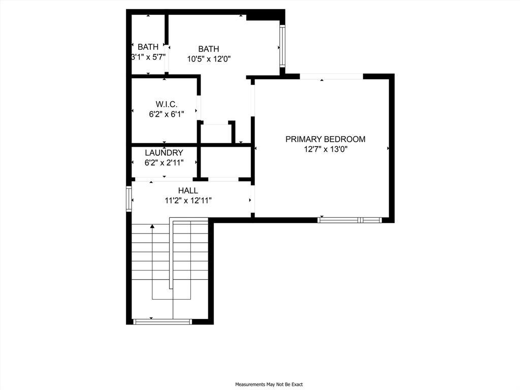
Floor plan at a glance: Level 1 includes a private bedroom with full bath, interior access to the attached garage with additional storage, and a patio just off the bedroom — ideal as a guest suite, office, or roommate space. Level 2 offers open-concept living, dining, and kitchen space with powder room, balcony, and abundant natural light for everyday living and entertaining. Level 3 features a private primary suite with ensuite bath, generous walk-in closet, and upper balcony with stunning Austin skyline views.

Community amenities: Gated entry, resort-style pool, dog park and green space, and community walking paths. Prime location just minutes to Downtown Austin, Lady Bird Lake, the Boardwalk, Oracle campus, and East Austin dining, coffee shops, and neighborhood favorites.

Images

Contact

Feel free to contact us for more details!

Bérengère Anthony

Bérengère Anthony

706749 - Realtor, JPAR Realty